SolidWorks Electrical Schematics 2026
Automatización de diseño de esquemas eléctricos
Automatiza tareas repetitivas de diseño eléctrico y utiliza herramientas inteligentes para crear esquemas unifilares y multifilares, generando de forma rápida y consistente la documentación detallada necesaria para fabricación y mantenimiento.
SolidWorks Electrical Schematics
solución profesional para esquemas eléctricos
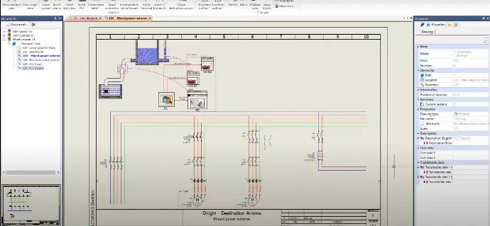
Solución profesional para el diseño de esquemas eléctricos, orientada a ingenieros y departamentos de ingeniería que requieren precisión y estandarización. La herramienta permite crear esquemas unifilares, multifilares y de control de forma rápida y coherente, apoyándose en una base de datos de símbolos, fabricantes y referencias eléctricas.
Schematic reduce al mínimo las tareas repetitivas y propensas a errores como numeración de hilos, generación de listas de materiales y actualización de referencias cruzadas, lo que mejora la calidad de la documentación y hace más eficiente el flujo de trabajo. De este modo, las empresas pueden concentrarse en el diseño eléctrico y en la validación de proyectos, en lugar de invertir tiempo en revisar hojas de cálculo y corregir documentación manualmente.
Beneficios clave de SolidWorks Electrical Schematics para su empresa
Acelere el lanzamientos de sus productos
Acelera el desarrollo de proyectos al automatizar tareas repetitivas de diseño de esquemas y actualización de documentación, reduciendo errores humanos.
Colaboración multiusuario entre equipos eléctricos y mecánicos
Ofrece bibliotecas compartidas y colaboración entre equipos eléctricos y mecánicos, manteniendo coherencia documental con funciones de documentación inteligente.
Optimización de tiempos Menos tiempo en tareas repetitivas
Reduce hasta un 50 % el tiempo de documentación tradicional mediante auditorías automatizadas y disminuye significativamente los errores en los esquemas eléctricos.
Características de la licencia SolidWorks Electrical Schematics
Reutilización de circuitos eléctricos
Permite reutilizar circuitos de manera paramétrica: al pegarlos actualiza etiquetas, numeración y referencias en esquema y documentación, logrando un ahorro de tiempo del 100 % al reutilizar componentes.
- Mantiene consistencia automática de etiquetas y referencias al reutilizar circuitos.
- Actualiza listas de materiales y documentación al reutilizar bloques eléctricos.
Numeración automática de cableado eléctrico
automatiza la numeración de cables en esquemas y documentación, recalculando al insertar páginas o nuevos conductores y eliminando revisiones manuales para reducir el tiempo dedicado a auditorías.
- Renumera de forma dinámica los cables cuando se insertan páginas o nuevos conductores.
- Disminuye drásticamente el tiempo invertido en informes y auditorías de numeración.
Actualización global de componentes y documentación
actualiza automáticamente todas las instancias de una pieza en el esquema y la documentación, verifica que no queden referencias sin cambiar y elimina la necesidad de renumerar o auditar manualmente.
- Sincroniza cambios de componentes en todo el proyecto.
- Reduce el riesgo de omitir instancias modificadas.
Cursos Recomendados
SolidWorks Electrical Schematics
Curso SolidWorks Electrical Sch. (3 días)
Curso SolidWorks Electrical Avanzado (1.5 días)

Solicita cotización
Déjenos sus datos y un asesor se póndra en contacto